Barbara-Uthmann-Ring 73, 09456 Annaberg-Buchholz
Mietkosten
Kaltmiete
311,85 €
Nebenkosten
190,00 €
Gesamtmiete
501,85 €
Genossenschaftsanteile
1240,00 €
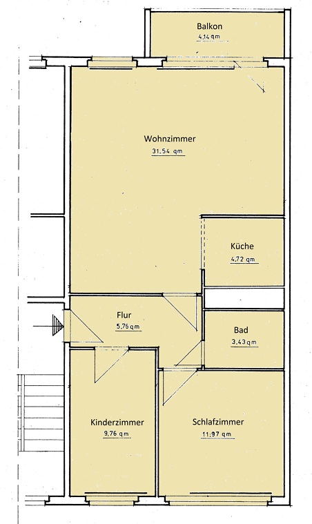
Wohnungsdetails
Wohnräume:
3
Wohngeschoss:
5. Etage
